top of page

Showroom i nedlagt lagerhal
Type: Renovering og ombygning
Projektår: 2025
Kunde: Erhverv
Samarbejdspartnere:
Clarke Entreprise, T-KON
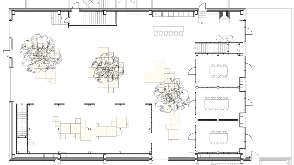
Projektet er indretning af et showroom i en eksisterende lagerhal, hvor den industrielle karakter bevares som en central kvalitet. Nye elementer i limtræ og krydsfiner indpasses som selvstændige strukturer og skaber varierede rum og mødefaciliteter. De eksisterende facader åbnes med store vinduespartier, som tilfører dagslys og styrker forbindelsen til omgivelserne.





bottom of page